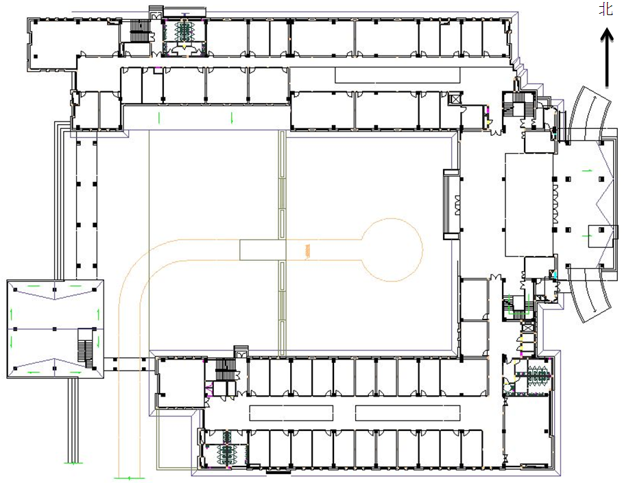
西工大新闻网4月28日电(彭亮 卢社强)启翔楼,原名为综合楼,位于启翔湖畔,总建筑面积为2.2万平方米,地上5层,地下1层,设130个地下停车位,按建筑方位分为南楼、北楼和东楼。

为贯彻落实习近平总书记在全国高校思想政治工作会议上的讲话精神,落实学校“以学生为根、以育人为本”理念,学校根据“统筹规划,布局合理,相对稳定,动态调整”的用房规划原则,结合两校区功能定位,制定了两校区用房规划方案。按照学校领导将优质房屋资源优先用于人才特区的要求,学校拟将启翔楼规划为长安校区人才特区建设用房。其中北楼的一层、南楼和东楼规划为人才特区用房,北楼二至五层规划为学院用房。
启翔楼的投入使用将为学校人才引进提供优质的办公条件和工作环境,同时也为学校十三五期间学院搬迁工作打下良好基础。欢迎大家为启翔楼的规划使用提出宝贵意见和建议。联系电话:88494515。
启翔楼房源情况及平面图:
单位:㎡
|
楼层 |
南楼 |
东楼 |
北楼 |
使用面积合计 |
建筑面积合计 |
|
使用面积 |
建筑面积 |
使用面积 |
建筑面积 |
使用面积 |
建筑面积 |
|
一层 |
758.34 |
1457.31 |
115.20 |
221.38 |
995.93 |
1913.89 |
1869.47 |
4102.9 |
|
二层 |
1040.29 |
1999.14 |
241.69 |
464.46 |
975.57 |
1874.76 |
2257.55 |
4079 |
|
三层 |
779.18 |
1497.36 |
478.20 |
918.96 |
1002.62 |
1926.74 |
2260.00 |
3943 |
|
四层 |
660.54 |
1269.37 |
71.13 |
136.69 |
982.40 |
1887.89 |
1714.07 |
3199 |
|
五层 |
|
|
|
|
551.57 |
1059.96 |
551.57 |
1304 |
|
小计 |
3238.35 |
6223.17 |
906.22 |
1741.49 |
4508.09 |
8663.24 |
8652.66 |
16627.9 |
(审稿:张原)